【重慶裝修公司案例賞析】平層別墅歐式設計風格
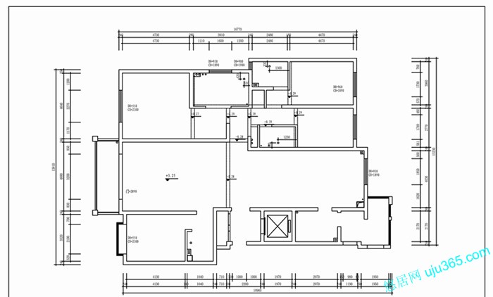
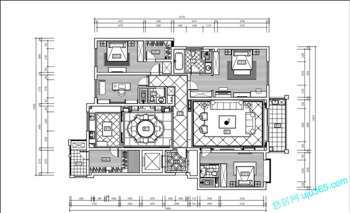
導讀:本案是別墅裝修,別墅251平方米戶型的設計方案,該戶型是大平層戶型,大平層豪宅因其兼具的商品房特性與高端化氣質,大平層的
本案設計風格為重慶裝修公司別墅精品的新古典風格, 在門廳的地方,用了一塊比較大的拼花作為空間的劃分,并且在視覺上也給人了一種寬闊感。
功能規劃上將空間利用最大化。設計了中西餐廳和新古典式的客廳,獨特的重慶裝修公司風格使房子的流線型更加突出;
大理石與板墻的對比與協調,顯得空間更加和諧與豪華。
大氣,豪華,高貴,和合理的空間規劃是這套戶型設計的主要特點。
功能規劃上將空間利用最大化。設計了中西餐廳和新古典式的客廳,獨特的重慶裝修公司風格使房子的流線型更加突出;
大理石與板墻的對比與協調,顯得空間更加和諧與豪華。
大氣,豪華,高貴,和合理的空間規劃是這套戶型設計的主要特點。








重慶裝修公司案例由悠居網提供m.much3g.cn
上一篇:
【家庭裝修心得總結,讓你家更美麗!】
下一篇:
【裝修名詞你知道多少】
熱門文章
更多 >>
