經典日式MUJI風裝修,白墻落地+木質家具就很美!
導讀:日本MUJI風溫馨平和,給人一種干凈簡約的感覺!經典的日式裝修,就是屬于不多不少的剛好!
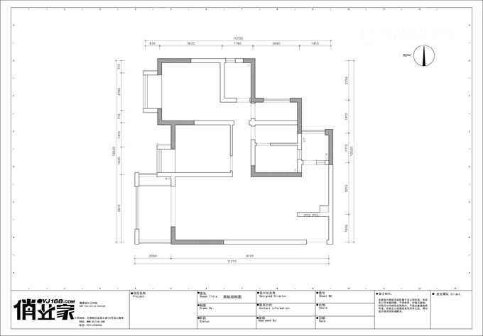
1、常住人口2人,備一間兒童房以及看書的多功能房。2、廚房較小,入戶小氣。3、衛生間一間足夠,提高空間有效使用率。

》》設計思路(戶型優化細節):
定制設計:1、生活陽臺納入廚房,廚房做成開放式設計。2、取消主衛,增加主臥衣帽間區域。

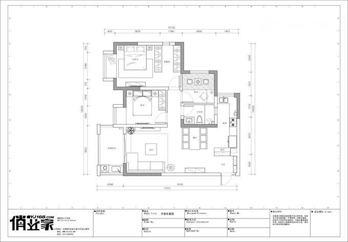
》》效果打造(整屋設計理念+局部空間詳述):

一進門,就發現玄關的設計實用而極具心思。實用性的換鞋凳、大收納功能的鞋柜。同時,木質材料搭配半透明的樟子紙,以經典的日式推拉門款式做隔斷,朦朧的通透感符合日式MUJI風,簡練之余多了些自然的韻味。

客廳的色彩基調是白色和原木色,白墻落地+木質家具,局部用綠植添加一絲活力,這些自然素材的“和諧”讓整個大空間顯得自然且淡雅,也讓戶型不大的空間看著更加通透敞亮。

餐廳廚房是開放式設計,讓原本狹小的空間擁有了渾然一體的感覺,視覺,曲線更加完美!


主臥布置淡雅簡潔,硬裝/家具線條清晰,有較強的幾何感,角落里的綠植木枝讓臥室充滿寧靜、平和的氛圍。

次臥,也就是備用的兒童房,以留白不空的設計理念,堅持以少甚多,理性而克制,一兩幅小畫美得剛剛好!

女業主喜靜、好書。因此多功能房被打造成兼具茶室功能的書房,成為了小憩的空間。而且,榻榻米上的小桌子一旦被撤下,就成為一個臨時客房,擁有居家的實用主義。

同地板紋理、色彩相似的衛生間木門,一經推開即見干凈明亮的三分離。

》》專家點評:
》》設計預約:
重慶裝飾公司俏業家——全案設計領先品牌!中意本案設計,點擊在線報名,免費獲取專業設計團隊定制設計方案1份+初步預算1份!網友專享!活動有效!
更多海量實景裝修案例,請繼續關注重慶裝修公司俏業家官方網站!!
上一篇:
六個小技巧,房子空間大十倍?
熱門文章
更多 >>
