中庚城4房|原木自然風格裝修
導讀: 重慶裝飾公司俏業家作為全案設計領先品牌,特別采用“總監負責、主案實施、助理協助”的團隊設計服務模式
重慶裝飾公司俏業家作為全案設計領先品牌,特別采用“總監負責、主案實施、助理協助”的團隊設計服務模式,為你的新家集思廣益,個性定制私享空間,打造新房精品工程。本實景案例是重慶俏業家裝飾設計師為中庚城的4房戶型專門打造的原木自然風格裝修案例。
樓盤:重慶中庚城
區域:重慶市北碚區蔡家
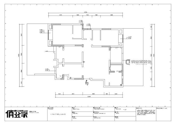
面積:120平
戶型:4房
裝修風格:{現代風格}原木自然風
設計創意總監:楊佼佼
【一鍵抵達】客廳 餐廳 休閑區 主臥 老人房 兒童房
【業主需求】
剛需3房,但是原格局是4房布局,奈何各個空間都較為緊湊,空間面積較小,舒適性不高。希望設計師能為房子帶來變化,追求舒適性。

【設計靈魂】
設計師楊佼佼根據業主剛需3房做了整屋布局的優化,整個格局發生了翻天覆地的變化,大大增加了新房的舒適性與功能性。

【細節刻畫】
1、客廳裝修:整屋鋪設深色耐磨地磚,家具和軟裝選擇卡其色或茶色等同系款式,使整個空間環境更加融洽平靜,烘托出舒適雅致的氣氛。


客廳緊鄰輕食烹飪區,因此設計師規劃了吧臺座位區,打造出一處多功能多變化的靈動區域。

2、餐廳裝修:經過空間改動后,餐廳陳設在落地窗旁,緊靠前花園,同時擁有充裕采光和戶外景觀。家具特別選用大型木質餐桌烘托出雅靜意境,漂亮的木紋在陽光的映射下,溫暖又帶有治愈性,營造出自然而不簡單的用餐環境。

3、休閑區裝修:擁有后花園景觀的休閑區,陶冶情操,烹茶靜心。選擇帶有中式溫婉的家具和淺色定制柜,更添閑情雅趣。


4、主臥裝修:臥室的功能就是休息,所以避免了元素的過多堆砌,而且為了整體效果,設計延續公區凈雅自然的基調,以一些簡單質樸的小飾品妝點舒適氣息與自然質感。

5、老人房裝修:舒適又務實的裝修風格,讓每一處都帶著慵懶的放松。為了不破壞整體效果氣氛,通用木質家具款式,再擺放一些植物凸顯簡單放松的氛圍。

5、老人房裝修:舒適又務實的裝修風格,讓每一處都帶著慵懶的放松。為了不破壞整體效果氣氛,通用木質家具款式,再擺放一些植物凸顯簡單放松的氛圍。

看到這里,是不是有些了解原木自然風裝修,免費獲取俏業家裝飾設計大咖同款設計,請電話報名:400-168-6906。
——重慶中庚城案例內容詳情——
樓盤:重慶中庚城
區域:重慶市北碚區蔡家
面積:120平
戶型:4房
裝修風格:{現代風格}原木自然風
設計創意總監:楊佼佼
【一鍵抵達】客廳 餐廳 休閑區 主臥 老人房 兒童房
【業主需求】
剛需3房,但是原格局是4房布局,奈何各個空間都較為緊湊,空間面積較小,舒適性不高。希望設計師能為房子帶來變化,追求舒適性。

【設計靈魂】
設計師楊佼佼根據業主剛需3房做了整屋布局的優化,整個格局發生了翻天覆地的變化,大大增加了新房的舒適性與功能性。

【細節刻畫】
1、客廳裝修:整屋鋪設深色耐磨地磚,家具和軟裝選擇卡其色或茶色等同系款式,使整個空間環境更加融洽平靜,烘托出舒適雅致的氣氛。


客廳緊鄰輕食烹飪區,因此設計師規劃了吧臺座位區,打造出一處多功能多變化的靈動區域。

2、餐廳裝修:經過空間改動后,餐廳陳設在落地窗旁,緊靠前花園,同時擁有充裕采光和戶外景觀。家具特別選用大型木質餐桌烘托出雅靜意境,漂亮的木紋在陽光的映射下,溫暖又帶有治愈性,營造出自然而不簡單的用餐環境。

3、休閑區裝修:擁有后花園景觀的休閑區,陶冶情操,烹茶靜心。選擇帶有中式溫婉的家具和淺色定制柜,更添閑情雅趣。


4、主臥裝修:臥室的功能就是休息,所以避免了元素的過多堆砌,而且為了整體效果,設計延續公區凈雅自然的基調,以一些簡單質樸的小飾品妝點舒適氣息與自然質感。

5、老人房裝修:舒適又務實的裝修風格,讓每一處都帶著慵懶的放松。為了不破壞整體效果氣氛,通用木質家具款式,再擺放一些植物凸顯簡單放松的氛圍。

5、老人房裝修:舒適又務實的裝修風格,讓每一處都帶著慵懶的放松。為了不破壞整體效果氣氛,通用木質家具款式,再擺放一些植物凸顯簡單放松的氛圍。

看到這里,是不是有些了解原木自然風裝修,免費獲取俏業家裝飾設計大咖同款設計,請電話報名:400-168-6906。
上一篇:
裝修買家電要注意這三點
下一篇:
新房裝修你要明白的幾個關鍵要點!
熱門文章
更多 >>
