
樓盤介紹

江山樾由東原與旭輝聯合打造, 項目據守兩江都市圈腹地, 立于重慶大竹林高端純墅區,占地近500畝。,北區的大規模純別墅群落 ,享一江兩山美景,近攬三大公園萬畝林海,出則繁華,入則靜謐。 臨近軌道6號線及金州大道黃金十字,依托先期呈現的高家花園復線橋、大竹林大橋。四橫三縱三橋一輕軌交通路網, 無縫融入主城各核心區。 江山樾純洋房組團即將推出, 作為原別墅建筑用地,1.57的超低容積率,大尺度、大間距(50米),大中庭(5000㎡), 讓重慶洋房重回4層時代,重新定義市場洋房生活新標準。樾府將被東原、旭輝合力打造為重慶洋房好口碑。
設計師介紹

劉錫渝
從業年限:7年 設計理念:藝術源于生活,而生活是藝術的來源,追求簡單、反對過渡裝飾的設計理念是現代主義的核心思想,于此同時信仰與意義成為了設計的本源。 代表作品:鐵建山語城、龍湖紫臺山、龍湖花千樹、融創紫泉楓丹、龍湖江與城、新寶龍鉆石國際、未來方舟、彩云湖 。
——現場勘查

設計概念
——創意抽象
現代美式風格是時代發展趨勢的產物,指的是色彩相對傳統美式更加豐富,更加年輕化,家居選擇更有包容性。其追求華麗,高雅的古典風格,居室色彩主調比較靈活。采用非傳統的混合,疊加,錯位,裂變等手法和象征,隱喻等手段。
設計元素


現代美式
——風格說明:
“千山鳥飛絕,萬徑人蹤滅”一點兒墨綠,一點兒純白的素凈之感。皚皚白雪掩蓋一眾山河,零星幾點墨綠卻在枝椏間透露著松柏綠林的影子,白綠交織。寥寥幾筆,便能勾勒出一副翩翩君子、溫潤如玉的形象,由時間沉淀而來的韻味保持一貫的從容淡定,雍容大方之氣。
主要裝修材料 _Decorative material
——木飾面

——金屬

主要建筑材料 Building material
——木地板

——硅藻泥

戶型圖分析
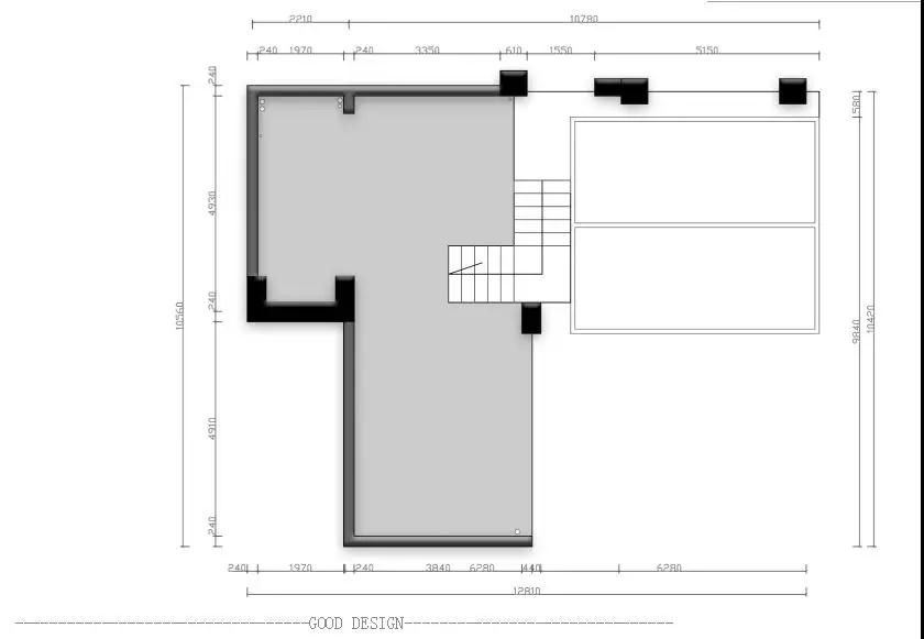
——負二層戶型分析

戶型優點:層高較高;承重柱較少,可改動大; 1900地臺可利用。
戶型缺點:側面承重梁阻擋樓梯;縱梁重且低; 無通風采光。
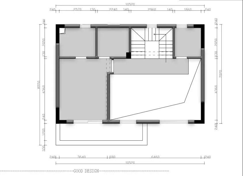
——負一層戶型分析

戶型優點:調控可利用,層高較高;承重柱較少, 可改動大;灰色采光井可利用。
戶型缺點:無通風采光。
——一層戶型分析

戶型優點:通風采光較好;承重柱較少,可改動性 大;花園較大且可開采光井。
戶型缺點:直通入戶,無儀式感;原始功能分區擁 擠;客廳無推拉門出入。
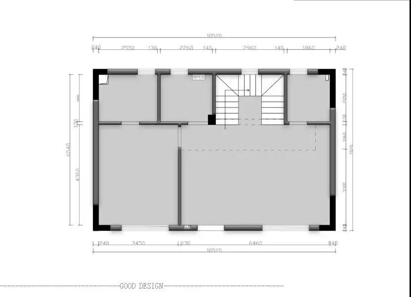
—— 二層戶型分析

戶型優點:通風采光極好;承重柱較少,可改動性 大;調控層可利用。
戶型缺點:次臥室無陽臺。
平面方案設計圖
——一層

一層室內面積:65.48㎡
——二層

二層室內面積:73.95㎡
——負一層

負一層室內面積:93.94㎡
——負二層

負二層室內面積:49.27㎡
總室內面積:282.65㎡
家居意向 _Furniture


配飾&藝術品 _Accessories



設計源于生活中的一些經歷、一些體會、一些頓悟。愿此設計方案能為您的生活服務,讓你的生活多一份回憶和感動。 The final source of Zen in life experience, some experience, some insight. Hope this design can for your service, make your life more than a memory and moved.



