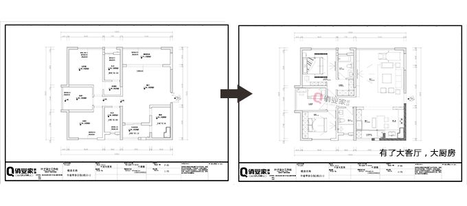
現在大家買房除了地段,價格,關心最多的就是房子帶給家庭的舒適度,能否滿足家庭生活的基本需求。然而,現在的樓盤新房戶型都是開發商考慮了很多外在因素得出的戶型,往往會存在不合理的地方。
所以,新房裝修過程中,戶型優化就顯得十分必要了,主要體現在以下3點。
一、整個設計更能符合每個家庭的特殊性。同樣的2室戶型,有人想要的是大客廳,有人想要的是多一個臥室,又或者都想要。這個時候,只有在新房裝修過程中,設計師做合適的戶型優化,才能實現每個家庭不同的裝修需求。

二、戶型的利用率能夠大幅提高。新房是承載家庭生活的容器,在新房面積上不能有所改動,那么,高明的戶型優化方案對于利用新房每個平米的空間,有著至關重要的地位。
三、可以使得新房的動區,靜區更加科學。家庭新房是可以分為動區和靜區兩個空間。動區,家庭成員活動頻繁的區域;靜區,則是家庭成員休息的私密空間,戶型改動則可以促使這兩個區域進一步的分割,互不干擾。
裝修新房,戶型優化是提高新房舒適度的重要手段,重慶俏業家裝飾全案設計領先品牌,個性定制私享空間,為千家萬戶帶來高品質定制裝修。
