爆改32平迷你公寓,太美了!為設計師打call~

本次小編帶來的裝修案例,是一個只有32平的公寓,loft結構的房子,上下兩層加疊,真正的迷你小戶型。
原來的裝修存在著很多弊病,比如說,二層的部分空間是不規則的,無法得到合理的利用;中間的樓梯擋住了一部分光線,對整個室內的采光造成影響,房間昏暗等。但這些在設計師看來都不是問題,憑著化腐朽為神奇的設計,讓整個空間大變樣,以下是對比圖。

使用面積:32㎡
裝修花費:12萬
裝修時長:3個月

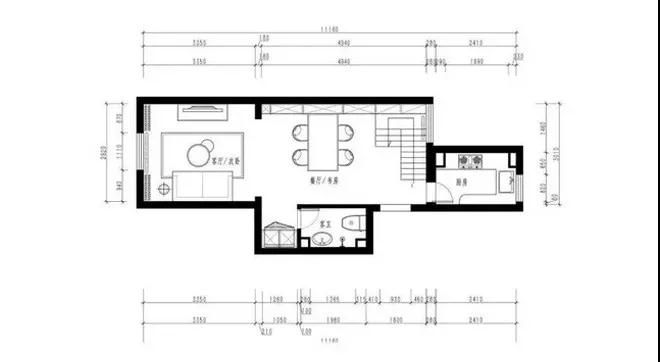
// 一層戶型圖 //


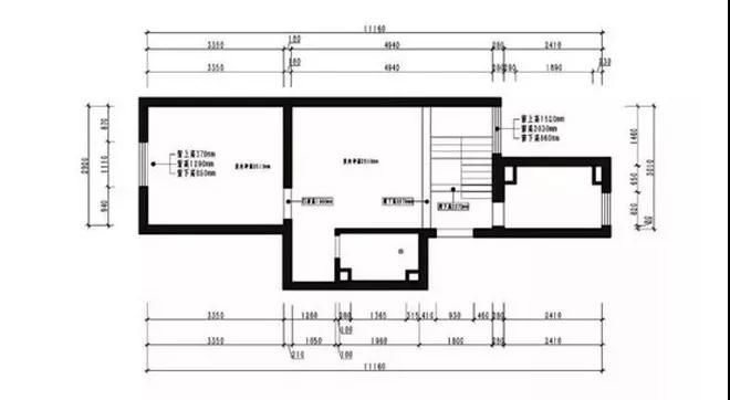
// 二層戶型圖 //


- 客廳 -
改造前:客廳和餐廳沒有明確分區,餐桌被擠在了樓梯下,局促而擁擠,進出吃飯都得低頭,容易磕碰到頭部。并且厚重的樓梯,擋住了客廳唯一的采光源,在不開燈的情況下,光線不足,房間昏暗。

改造后:保留原來樓梯的鋼架結構,去除厚重外殼,涂刷黑漆,利落的線條讓整個空間更立體。
把餐桌從樓梯下移出,增加墻面收納柜,擺放上書籍和植物,增加生氣。
- 書房 -

現在的書房,已經和餐廳合二為一了,空閑的時候,餐桌可以充當書桌使用。而以前書房的位置,加了一把休閑雙人沙發,變身休閑區。

書房從原來的獨立空間,被搬到了餐桌旁邊,一個靠墻而立的木質組合柜,將所有心愛的書籍和擺件塞滿。同時,餐桌也可以充當書桌,空閑的時候,泡上一杯茶,靜靜地看書,也能為忙亂的生活增添一種雅趣。
-衣物儲藏間-
改造前:原先的衣柜,設置在臥室的門口位置,一個斜坡的夾角,空間容量小,以至于業主的很多衣服都直接搭在樓梯扶手上,另外穿衣鏡的位置設計不安全,后退幾部就是樓梯,容易踏空。

改造后:將夾角和樓梯連通,大幅度增加容量面積,挖掘出更多的收納空間。
- 陽臺 -


陽臺重新翻新了一邊,這時改頭換面的變化,以前破敗的墻面現在換成了活力十足的橙色瓷磚飾面,地板采用了防腐木,右側設計單獨的儲物區,方便收納洗衣設備,并配備了榻榻米,閑來無事的時候躺在上面曬曬太陽,簡直再舒服不過了!
- 衛生間 -

雖然小,但布局緊湊合理,干濕分明,內部為淋雨區,加高了2厘米左右的擋水臺,防止水外流。
以前暗沉沉的黑白馬賽克瓷磚也換位了大塊灰色和藍色的組合,配以木質洗手臺,整個空間亮起來了。
- 臥室 -
改造前:天花板頂帶有連續性起伏,不平整,本來整體的高度就偏低,再加上垂墜式吊燈和暗紫色窗簾,空間沉悶。

改造后:明顯的感覺就是統一了,無論是色調還是質感,都得到了高度統一,除去了多余的色塊,吊頂變得平整,去掉以前的吊燈,改成點光源筒燈,分散照明,因為空間較小,這樣的改動,不僅不會暗,而且讓光源均勻分布,不刺眼。

生活不止眼前的茍且
還有詩和遠方的田野
別讓自己的房子變得和出租房一般
只要好好設計
小房子也可以有春天
